For sale

1832 17 Avenue Nw, Calgary, Alberta t2m 0s2

MLS® # A2236306

Price:

$3,150,000

Description

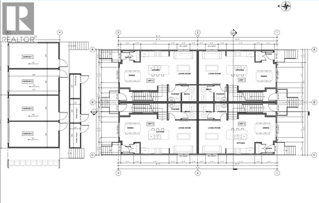
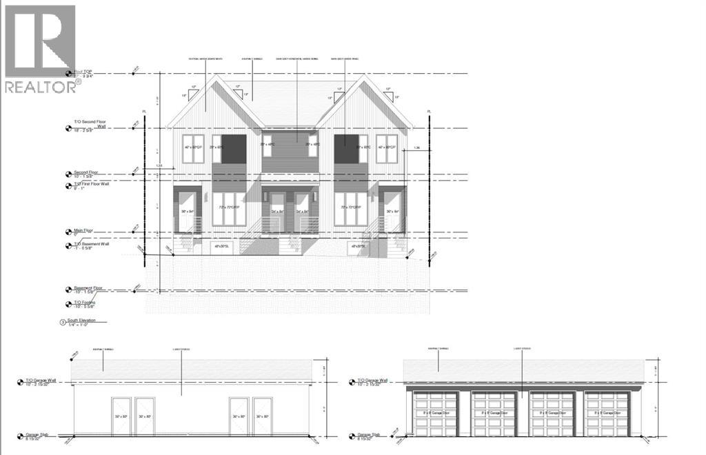
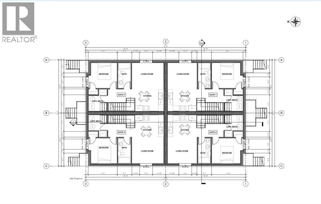
Enhance your real estate portfolio with this premier new construction rental development in Capitol Hill, one of Calgary’s most desirable inner-city communities. Scheduled for completion in the end of 2026, this purpose-built investment property consists of two buildings featuring a total of eight rental suites. Each building includes a spacious upper unit with three bedrooms and 2.5 bathrooms, as well as a well-appointed lower unit offering one bedroom with kitchen and full bathroom. A four-car detached garage with lane access provides added convenience and tenant appeal. Strategically located near downtown Calgary, 17th Avenue, parks, transit, and shopping, the property is ideally positioned to attract quality tenants and command above-average rents. Investors will appreciate the thoughtful design, superior construction, and long-term rental potential of these townhomes.The development is distinguished by its low-maintenance Hardy board exterior, high-efficiency HVAC systems, and durable finishes throughout—ensuring reduced operating costs and long-term durability. These modern, well-designed units are tailor-made for consistent cash flow and minimal upkeep. With estimated rents of $2,850 for upper suites and $1,450 for lower units Whether you're a seasoned investor or looking to diversify your holdings, this exceptional income-generating property offers the perfect blend of location, quality, and financial performance. For more information, contact us and take the next step toward securing a high-performing asset in Calgary’s thriving rental market. (id:51913)


Property Details

  Multi-Family
 4462 sqft

Key Details

STATUS
For sale
TYPE
Multi-Family
BUILT IN
1950
PARKING SPACES
4

Property Features

  • MLS® Number A2236306
  • Price $3,150,000
  • Square Footage: 4462 sqft
  • Property Type: Multi-Family
  • Community Name: Capitol Hill
  • ParkingSpaceTotal 4
  • Plan 2864af

Buildings

ConstructedDate 1950 SizeInterior 4462 Sqft
TotalFinishedArea 4462 Sqft Type Multi-family

Land

Acreage No SizeIrregular 557.00
SizeTotal 557 M2|4,051 - 7,250 Sqft SizeTotalText 557 M2|4,051 - 7,250 Sqft
ZoningDescription R-cg

Agents and Offices

  • Wei Liao
  • Office: Cir Realty
Address
?>